Old Town Hall Construction Updates

Ramp Installed, Work Begins Next Week

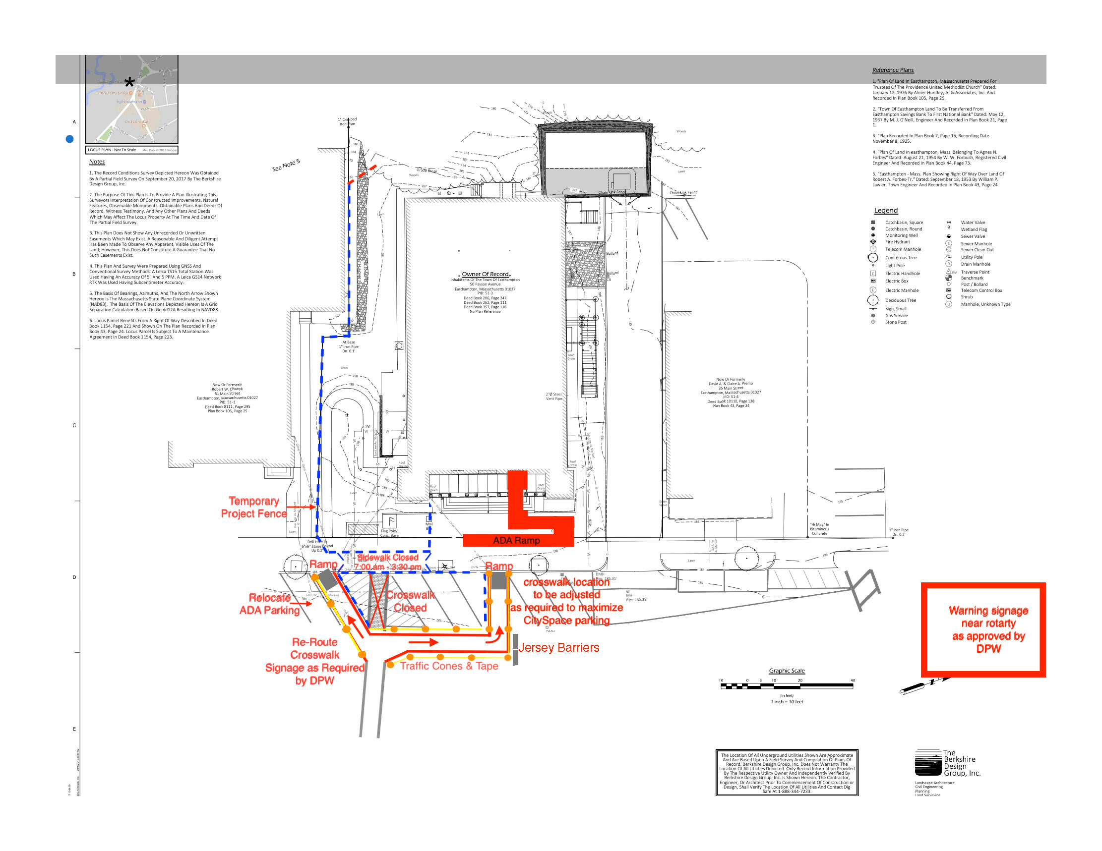
Temporary accessible ramp installed at Old Town Hall

We’re starting to see some signs of construction at Old Town Hall. Today, Keiter installed a new temporary accessible ramp at the front entrance of the building. This ramp will remain in place throughout the duration of the project, allowing the building to stay open and accessible to all visitors. Whether you’re stopping by Big Red Frame, attending a performance, or visiting to see an exhibition at ECA or Elusie Galleries, you’ll still be able to enter safely.

Beginning Monday, fencing will be installed and construction work will officially get underway. We’re grateful to Easthampton’s Highway Department for refreshing the street markings on Main Street in preparation. It’s a thoughtful detail that helps keep everyone safe as activity increases in the area.

We’ve been working closely with Kuhn Riddle Architects and Keiter to plan each step of the project with care. Safety and minimizing disruptions have been top priorities throughout the process. Included below is a general layout of the sidewalk fencing that will be in place during construction.

We’ll continue to share updates as the work progresses. Thank you for your patience and support as we move closer to making Old Town Hall fully accessible for the first time in its 156-year history.

Thank you for being part of this journey. Follow our progress.

Construction Updates

CitySpace, a 501(c)(3) nonprofit organization, restores, preserves, and manages Old Town Hall as a center for the arts for the City of Easthampton and western Massachusetts.

CitySpace Eye
tagline Where Art Meets Community in Old Town Hall

CitySpace's first floor, the only floor open to the public, is wheelchair accessible on the south side of the building.

Privacy Preference Center